产品型号:RS-SJ-DW-4G
烟雾变送器
卡轨壳水浸变送器
断电报警器
壁挂王字壳水浸变送器
烟雾报警器
吸顶式红外探测器
NB-IoT电池供电型水浸变送器
点式水浸变送器
定位式水浸变送器
4G定位式水浸变送器
光电式水浸传感器
卡轨壳水浸变送器(带旋钮)
产品概述
4G 定位式水浸变送器是专为机房等环境设计的检测漏水设备,方便实时检测机房内有无漏水状况并快速确定漏水点。漏水绳检测到漏液后可立即发出报警以及吸合继电器,继电器可同时支持常开和常闭输出,并在 LCD 显示屏上显示漏液位置。
设备可通过4G将数据实时上传至我公司提供的免费云平台或者客户自己的服务器。用户可通过网页、手机APP实现对现场水浸情况的智能监测。另带有一路RS-485接口,可连接至PLC等其他上位机进行水浸状态采集。
设备支持蓝牙通讯技术,可通过手机“多功能参数配置”和设备连接快速且方便的配置参数。也可以读取实时值以及设备状态,也可以通过按键修改设备参数。设备可选配电池供电,市电断电时,可切换到电池继续供电,同时通过4G向平台发送市电断电的消息。
设备造型美观,体积小巧。方便安装,可选择多种安装方式。主要适用于数据机房、通讯基站、仓库、图书馆等重要场所的漏水检测。
功能特点
产品支持 4G 上传水浸信息,同时支持标准 ModBus-RTU 通信方式。
报警方式:4G 上传、继电器、RS485 方式报警、LCD 屏幕显示报警。
支持蓝牙配置参数和查看设备状态,操作简单方便。
有电池供电选型,支持市电断电报警。
LCD 屏采用 128*64 高清显示液晶屏,可直观查看漏水位置。
继电器同时支持常开和常闭触点。
主要技术参数
| 供电电压 | 10-30V DC |
| 功率 | 0.5W |
| 定位显示 | LCD屏显示 |
| 精确度 | ±(漏水绳长度的0.5%+0.5m) |
| 继电器带载能力 | 250V 10A |
| 串行接口 | 标准ModBus-RTU通信 |
| 工作环境 | -30~60℃,10~95%RH(非结露) |
| 储存环境 | -20~50℃,10~95%RH(非结露) |
| 安装方式 | 35导轨安装或壁挂安装 |
| 输出信号 | 4G |
| 数据上传间隔 | 默认300s(5s~60000s可设) |
| 配置方式 | 蓝牙配置 |
产品选型
| RS- | 公司代号 | |||||
| SJ- | 水浸变送器 | |||||
| DW- | 定位式 | |||||
| 4G- | 4G上传 | |||||
| DY- | 电源供电 | |||||
| DS- | 电源+电池双供电 | |||||
| 1 | 卡轨式安装 | |||||
| 2 | 壁挂式安装 | |||||
系统框架图
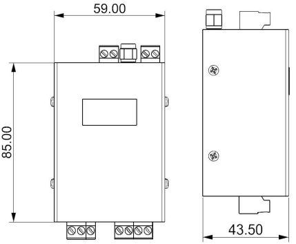
尺寸说明

单位:mm
安装说明


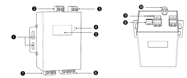
接口说明

